Anthy-sur-Léman – Élégance, confort et proximité du lac.
L’essentiel
- Prix de vente : 625 000 €
Honoraires à la charge du vendeur. - Taxe foncière 1 649 €
- Surface habitable 110 m²
Caractéristiques techniques
- Année de construction : 1978
- Nombre de pièces : 6
- Nombre de chambres : 4
- Nombre de salles d’eau : 1
- Nombre de WC : 1
- Cuisine : Séparée – Equipée
- Assainissement : Tout à l’égout
- Parking couvert : 4
- Garage : 1
- Chauffage habitation : Pompe à chaleur Air/eau et poêle bois
Description
À deux pas du lac Léman et des commodités, cette maison familiale de 1978 conjugue emplacement privilégié, confort moderne et esprit serein.
D’une surface d’environ 110 m², elle a bénéficié d’un entretien rigoureux et d’améliorations régulières, en faisant une propriété à la fois élégante et pérenne.
Le séjour, baigné de lumière, s’ouvre sur une terrasse plein sud-est de 44 m2, véritable espace de détente tourné vers la nature.
La cuisine independante allie fonctionnalité et esthétisme,
L’espace nuit se compose de trois chambres et d’un bureau (ou quatrième chambre selon les besoins).
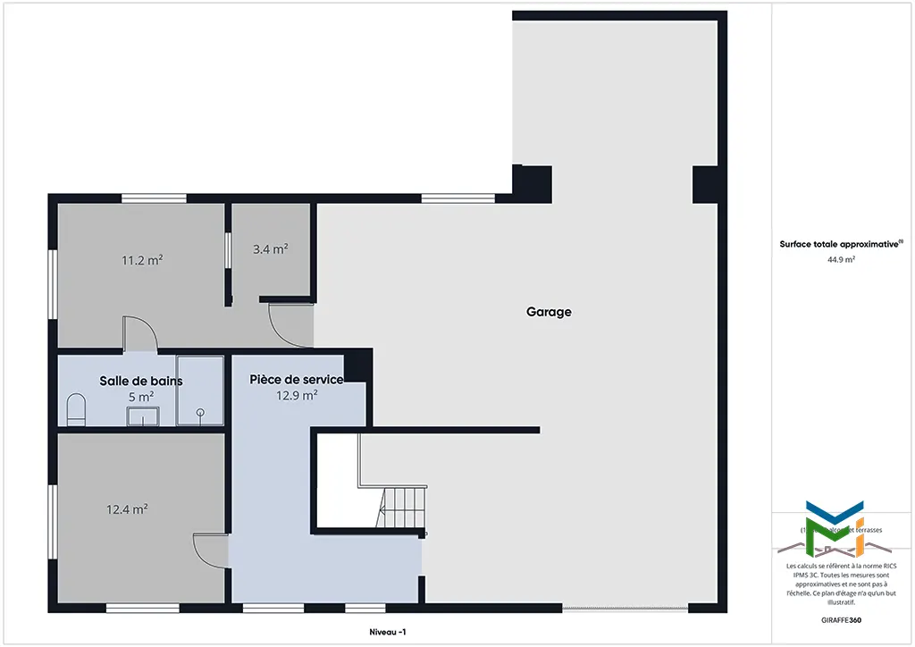
En rez-de-jardin, un espace indépendant avec salle d’eau offre de multiples possibilités : bureau, chambre d’amis, ou lieu de télétravail idéal.
Les extérieurs prolongent le confort intérieur :
Piscine au chlore (2001),
Seconde terrasse avec vue sur la Dent d’Oche,
Garage triple, abri voiture et sous-sol complet.
Les prestations témoignent du soin constant apporté à la propriété :
Pompe à chaleur installée en 2007,
Huisseries changées en 2015,
Ravalement et chéneaux refaits en 2020,
Fenêtres double vitrage en 2000.
Un bien rare à Anthy-sur-Léman, où chaque détail reflète la qualité et l’équilibre entre confort, discrétion et douceur de vivre à proximité du lac.
Bilan énergétique
Consommation énergétique (DPE) : D – 220 kWh/m²/an
Émission de gaz (GES) : B – 7 kg CO2/m²/an
Estimation du coût annuel énergie pour un usage standard entre 1470 € et 2030 € au 1er Janvier 2021 (abonnement compris)
Informations contractuelles
Numéro de mandat : 27081
Les informations sur les risques auxquels ce bien est exposé sont disponibles sur le site Géorisques : georisques.gouv.fr
Barème des honoraires : Consulter le barème























